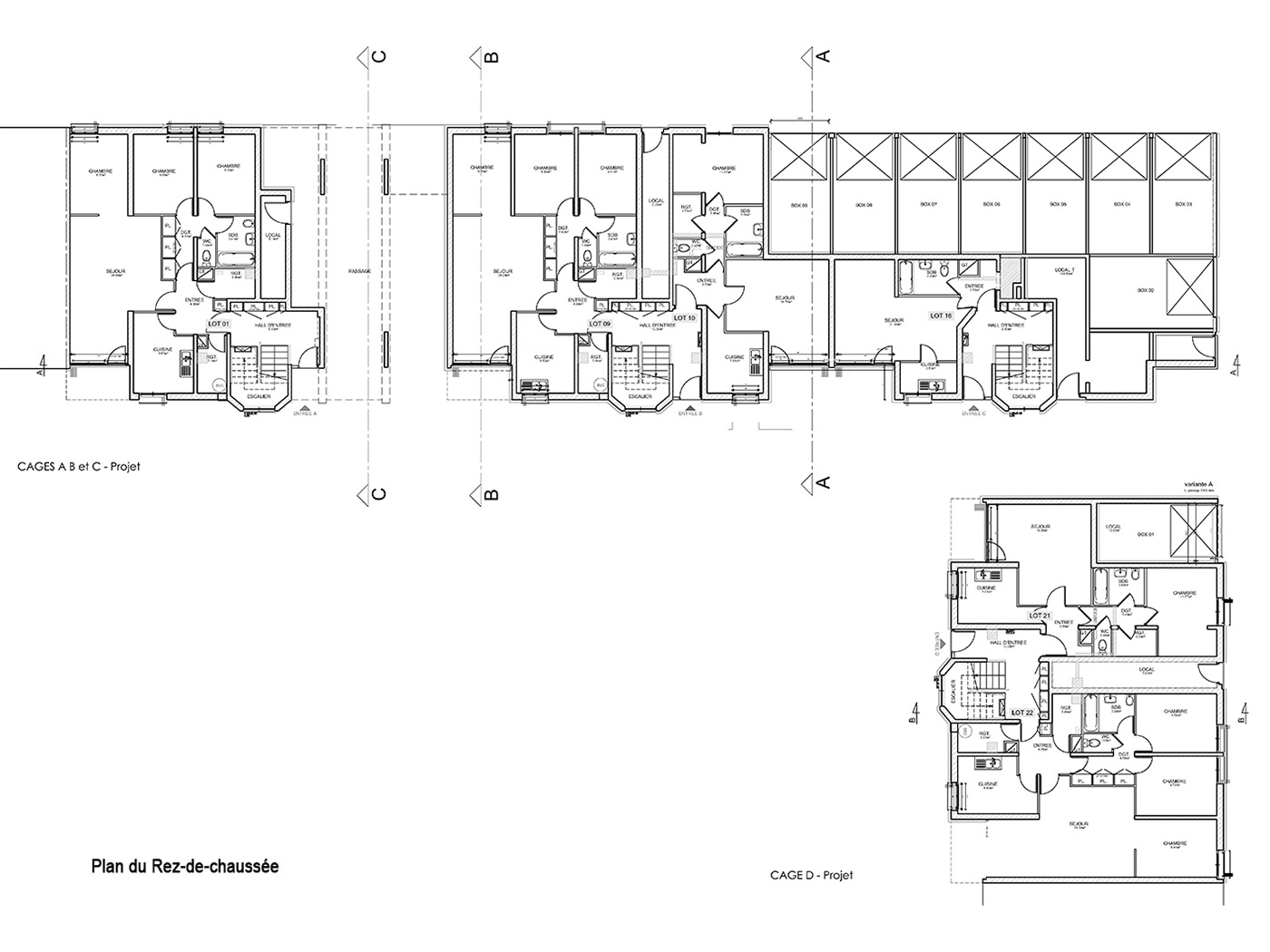
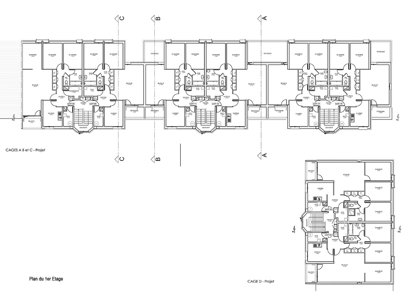
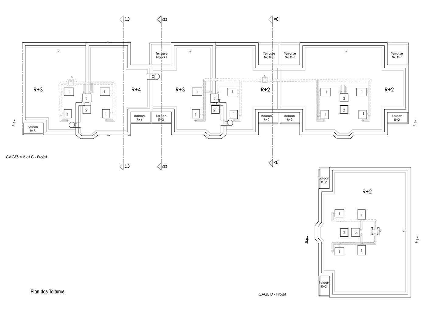
REHABILITATION THERMIQUE 26 LOGEMENTS
Programme
Réalisation d’une isolation thermique par l’extérieur, remplacement de l’isolant et réfection de l’étanchéité du toit, changement des fenêtres et des occultations, création d’un nouveau réseau de ventilation mécanique, mise en place de ballons d’eau chaude thermodynamiques (sur air extérieur), réfection des pièces humides (remplacement des appareillages, faïences et sols) et amélioration des parties communes.
Les travaux se sont déroulés en site occupé.
Présence d’amiante sur murs et planchers.
Durée des travaux : 14 mois.











